Dans le cadre de la réorganisation intérieure d’une maison située à Hyères, OMPT GROUPE a été sollicité par les clients de Mandelieu-la-Napoule pour agrandir deux ouvertures existantes dans des murs porteurs en maçonnerie. L’objectif principal était de créer une meilleure circulation entre les pièces tout en préservant la stabilité structurelle du bâtiment. Ce type d’intervention nécessitait une étude approfondie et l’intervention de professionnels spécialisés dans le renforcement des structures porteuses.
Les travaux ont été réalisés conformément aux prescriptions d’un bureau d’études techniques (BET). La première étape a consisté à mettre en place un étaiement complet, avec la création de plusieurs empochements pour l’installation de profilés HEA100 servant de chevalement. Ces éléments ont été provisoirement étayés avec des bastaings en bois et des étais métalliques, assurant une reprise de charge sécurisée pendant toute la durée de l’intervention.
La démolition des parties de murs porteurs a été effectuée à l’aide d’une scie circulaire diamantée, permettant une découpe nette et maîtrisée. Deux ouvertures ont été agrandies : la première, au sous-sol, atteignant les dimensions de 130 x 202 cm, et la seconde, au rez-de-chaussée, mesurant 120 x 297 cm, soit une ouverture allant jusqu’à près de 3 mètres de portée. L’évacuation des gravats a été assurée au fur et à mesure de l’avancement des travaux.
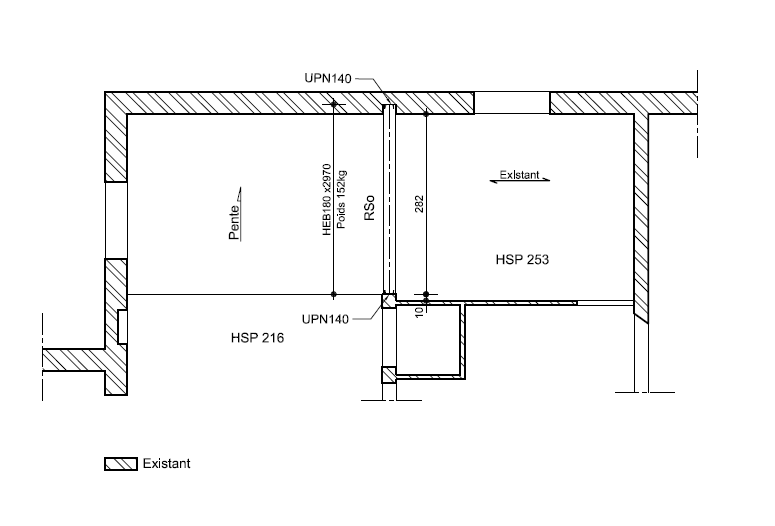
Pour le renforcement définitif, OMPT GROUPE a mis en œuvre une structure métallique sur-mesure. Un linteau HEA180 de 1,50 m a été posé sur des poteaux UPN140 de 2 mètres, fixés par des platines métalliques soudées au sol, et solidarisés à la poutre par platines soudées également. Une deuxième structure a été installée au rez-de-chaussée : une poutre HEB180 de 2,97 m de longueur reposant sur deux poteaux UPN140 d’environ 2,30 m de hauteur, ancrés par des tirefonds scellés chimiquement dans l’existant. Des sommiers en béton armé 20x20x20 cm ont été coulés pour servir d’appuis aux poutres et garantir une répartition optimale des charges.
L’ensemble des éléments métalliques a été traité avec une peinture antirouille afin de garantir leur pérennité. Des protections spécifiques ont été installées sur les sols, les menuiseries et les meubles afin de préserver les surfaces existantes pendant les travaux. Enfin, un nettoyage complet du chantier a été effectué à la fin de l’intervention, assurant une restitution propre et soignée de l’espace.
Cette réalisation témoigne du savoir-faire d’OMPT GROUPE dans les interventions complexes de renforcement structurel. Grâce à une exécution rigoureuse et une organisation maîtrisée, les clients bénéficient désormais de deux nouvelles ouvertures lumineuses, parfaitement intégrées dans leur espace de vie, et réalisées dans les règles de l’art.














0 commentaires