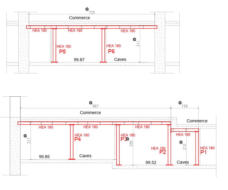
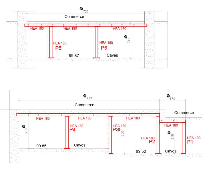
Dans le cadre de ce chantier situé à Roquebrune-Cap-Martin, notre entreprise est intervenue pour la reprise complète du plancher haut de caves, avec un renforcement par structure métallique afin de sécuriser et pérenniser l’ouvrage.
Le projet concernait un niveau en sous-sol supportant un commerce en partie supérieure, nécessitant une intervention structurelle précise pour reprendre les charges existantes et améliorer la capacité portante du plancher. Après étude réalisée par le bureau d’études, une solution de renforcement par poutres métalliques a été définie.
Les travaux ont débuté par la mise en sécurité de la zone et la préparation des appuis. Une structure métallique composée de poutres de type HEA 160 a ensuite été mise en place sur toute la portée, avec reprise des charges sur plusieurs poteaux métalliques. Cette configuration permet de redistribuer efficacement les efforts et de soulager le plancher existant.
Les éléments métalliques ont été posés avec précision, assemblés et fixés conformément aux préconisations techniques, garantissant une parfaite stabilité de l’ensemble. Une attention particulière a été portée aux appuis et aux ancrages afin d’assurer une transmission optimale des charges vers les fondations.
À la demande spécifique du client, nous avons également réalisé un habillage de la structure métallique avec un système de protection coupe-feu, permettant d’améliorer la résistance au feu de l’ensemble et de répondre aux exigences de sécurité du bâtiment.
Grâce à cette intervention, le plancher haut des caves bénéficie désormais d’un renforcement durable, permettant une exploitation en toute sécurité des espaces situés au-dessus. Ce chantier illustre notre expertise dans les travaux de reprise en sous-œuvre, de renforcement de planchers et de mise en place de structures métalliques dans des bâtiments existants.

















0 commentaires